Описание проекта

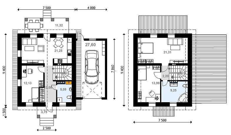
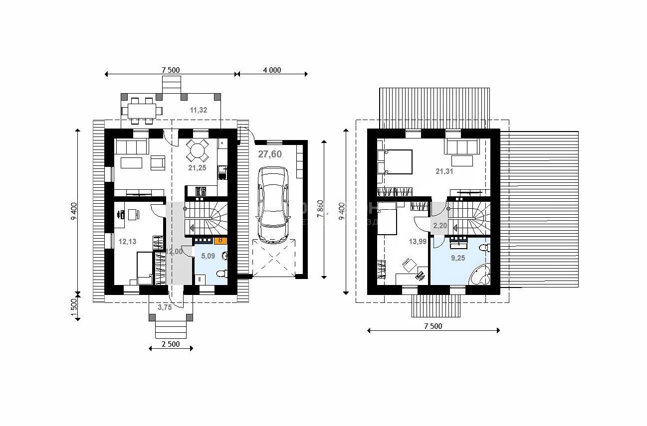
Вашему вниманию проект недорогого в строительстве загородного дома оптимального по площади с пристроенным гаражом. На первом этаже предусмотрено отдельное помещение для размещения котельного оборудования и инженерных коммуникаций. Гостиная и кухонная зоны объединены и имеют широкую дверь для выхода на террасу. В доме 3 спальни. Мы рекомендуем данный дом как самый выгодный для строительства.

При заказе строительства дома проект предоставляется в подарок.

  • Периметр дома 9,35 * 12,17
  • Общая площадь 127
  • Жилая площадь 80,68
  • Площадь гостиной 21,25
  • Этажность 2
  • Количество санузлов 2
  • Количество спален 3
  • Гараж на 1 машину
Комплектация проекта
На все дома действует гарантия от 5 лет
BOX
  • Фундамент
  • Коробка
  • Кровля
  • Остекление
  • Коммуникации|Отопление
  • Канализация
  • Чистовая отделка

Актуальность цен необходимо уточнять на текущую дату

Выбрать BOX
WHITE BOX
  • Фундамент
  • Коробка
  • Кровля
  • Остекление
  • Коммуникации|Отопление
  • Канализация
  • Чистовая отделка

Актуальность цен необходимо уточнять на текущую дату

Выбрать WHITE BOX
В стоимость каждого комплекта входят
  • Эскизный проект

    с разделами рабочей АР документации на все конструктивные элементы дома

  • Сопровождение

    всех этапов реализации проекта персональным руководителем проекта и прорабом

  • Доставка материалов

    сразу включена в смету

  • Размещение рабочих

    доставка бытовки и подключение ее к электричеству

  • Вывоз мусора

    после окончания строительства

  • Технический надзор

    на всех этапах инженером технического надзора

  • 5 лет гарантия

    на строительные работы вашего дома

Галерея
Постройте дом с нами
Заварзина Ксения
Заварзина Ксения Руководитель отдела продаж

Мы — команда специалистов со строительным и архитектурным образованием. Мы не просто рисуем красивые картинки, мы создаем ожидаемо качественные дома

Обсудить проект под Ваш бюджет